Mieszkanie na sprzedaż

Warszawa, Targówek, Bródno

2 pokoje
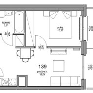
33.53 m²
17 059,35 zł/m2
1 piętro
HFC-MS-2134
Oblicz ratę kredytu

572 000 zł

Szczegóły oferty

Inwestycja Motlava Residence
Symbol oferty HFC-MS-2134
Powierzchnia 33,53 m²
Powierzchnia użytkowa [m2] 33,53 m²
Liczba pokoi 2
Liczba sypialni 1
Rodzaj budynku apartamentowiec
Piętro 1
Stan lokalu deweloperski
Okna PCV
Balkon jest
Winda tak
Pierwsza linia brzegowa tak
J&A

J&A

wspołwłaściciel/manager

Napisz wiadomość 157 Ofert

Opis nieruchomości

SPRZEDAŻ REALIZOWANA BEZPOŚREDNIO OD DEWELOPERA - bez prowizji i podatku PCC!
2 pokojowe mieszkanie w nowoczesnej inwestycji mieszkaniowej w zacisznej części osiedla Bródno
na Targówku.

Prestiżowy sześciopiętrowy budynek z garażem podziemnym i komórkami lokatorskimi.
Projekty mieszkań pozwalają w łatwy sposób na aranżacje i dostosowanie ich do indywidualnych potrzeb nabywców. Wszystkie lokale będą posiadały balkony, tarasy lub ogródki. Obiekt zostanie wyposażony w system monitoringu z ochroną.

Miejsce to jest doskonale skomunikowane z całym miastem, które można pokonać samochodem lub środkami komunikacji miejskiej.
Do dyspozycji w najbliższej odległości (100 m) jest siedem linii autobusowych, stacja metra Bródno (650m) oraz stacja PKP Toruńska obsługująca min. pociągi osobowe Szybkiej Kolei Miejskiej.

Dojazd do centrum Warszawy komunikacją miejską zajmuje około 20 min., a dzięki pobliskiej trasie S8 można stąd również szybko dojechać do odległych dzielnic Warszawy lub wyjechać z miasta.

Okolica posiada bogatą infrastrukturę społeczno-kulturalną, a niedaleko powstającej inwestycji usytuowane są liczne centra handlowe – TESCO, Galeria Renova/Rembielińska, CH Targówek, Carrefour, Factory Annopol, IKEA, M1 i inne punkty handlowo-usługowe, bazary ze świeżą żywnością, żłobki, przedszkola, szkoły, apteki, Multikino.
Zwolennikom aktywnego wypoczynku pobliska okolica oferuje liczne kluby sportowe, fitness (Zdrofit, Fit Fun , Gravitan) i taneczne min. Egurrola Dance Studio, tereny rekreacyjno sportowe; Orliki, kilka parków min. Park Leśny Bródno, Park Bródnowski z placami zabaw dla najmłodszych i starszych dzieci, boiskami do siatkówki, piłki nożnej, kortami tenisowymi oraz oczkami wodnymi i licznymi ścieżkami rowerowymi.

Mieszkanie sprzedawane jest w standardzie deweloperskim, a w ofercie załączone są zdjęcia wcześniejszych realizacji wykończenia lokali  Naszych klientów.
Na życzenie ZAPROJEKTUJEMY, WYKOŃCZYMY i WYPOSAŻYMY pod klucz Twoje mieszkanie.


Dla zainteresowanych doradztwo kredytowe eksperta z ponad 20-to letnim doświadczeniem we współpracy z wszystkimi dostępnymi bankami na rynku.

W sprzedaży posiadamy również  inne  1, 2, 3 i 4 pokojowe mieszkania w tej inwestycji.

Zakup mieszkania w tej inwestycji realizowany jest bezpośrednio od dewelopera - bez prowizji i podatku PCC
Termin zakończenia budowy - II kwartał 2026 r.
Miejsce postojowe w hali garażowej pod budynkiem dodatkowo płatne 40 000 zł.


W celu uzyskania szczegółowych informacji oraz umówienia spotkania w miejscu realizacji projektu zapraszam do kontaktu telefonicznego

Joanna,
tel. 600 225 250

 

Lokalizacja nieruchomości

Kalkulatory

Kalkulator kredytowy

Wysokość raty

PLN
%

Kalkulator kosztów

Taksa notarialna
(opłata notarialna)

Wniosek o wpis do WKW

VAT od prowizji
agencji nieruchomości

Vat od taksy notarialnej
(opłaty notarialnej)

Prowizja agencji nieruchomości

Wypisy aktu notarialnego

Razem

Uwaga: mogą wystąpić dodatkowe opłaty za założenie księgi wieczystej oraz ustanowienie hipoteki.

PLN
PLN
PLN
PLN
PLN
%
PLN

Podobne oferty

Mieszkanie na sprzedaż

Warszawa, Targówek

2 Pokoje 44 m2 14 399,64 zł/m2

Mieszkanie na sprzedaż

Warszawa, Targówek

3 Pokoje 50 m2 14 199,82 zł/m2

Mieszkanie na sprzedaż

Warszawa, Targówek

2 Pokoje 47 m2 14 799,23 zł/m2

Mieszkanie na sprzedaż

Warszawa, Targówek

2 Pokoje 47 m2 15 399,70 zł/m2

wspołwłaściciel/manager

Proszę wprowadzić poprawne imię i nazwisko
Proszę wprowadzić poprawny numer telefonu
Proszę wprowadzić poprawny adres e-mail
Proszę zaznaczyć wymagane zgody
Rozwiąż równanie:
12 6
Niepoprawny wynik