Mieszkanie na sprzedaż Warszawa, Białołęka, Żerań

2 pokoje
35.00 m²
15 400,00 zł/m2
1 piętro
HFC-MS-2251
Oblicz ratę kredytu

539 000 zł

Mieszkanie na sprzedaż
Nowa oferta

Szczegóły oferty

Symbol oferty HFC-MS-2251
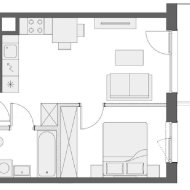
Powierzchnia 35,00 m²
Liczba pokoi 2
Liczba sypialni 1
Rodzaj budynku apartamentowiec
Standard
Piętro 1
Stan lokalu deweloperski
Okna PCV
Balkon jest
Winda tak
J&A

J&A

wspołwłaściciel/manager

Napisz wiadomość 173 Ofert

Opis nieruchomości

Zakup apartamentu realizowany jest bezpośrednio od dewelopera - bez prowizji i podatku PCC!

Mieszkanie w kameralnej inwestycji o ciekawej formie architektonicznej.
Ogromnym atutem inwestycji jest jej położenie. Lokalizacja w niedalekiej odległości od ulicy Modlińskiej, Trasy Mostu Północnego, komunikacji miejskiej (linie autobusowe i tramwajowa) pozwalającej szybko dostać się do innych dzielnic Warszawy, idealnie bilansuje sąsiedztwo świetnie rozwiniętej infrastruktury społeczno-kulturalnej z bliskością zielonych terenów rekreacyjnych min. ścieżka pieszo-rowerowa na Wale Wiślanym, Park Żerański).
W bliskim sąsiedztwie budowanej inwestycji znajduje się przedszkole oraz szkoła podstawowa.

Mieszkanie sprzedawane jest w standardzie deweloperskim; w ofercie załączone są zdjęcia wcześniejszych realizacji wykończenia podobnego mieszkania.

Na życzenie ZAPROJEKTUJEMY, WYKOŃCZYMY i WYPOSAŻYMY pod klucz Twoje mieszkanie



Dla zainteresowanych doradztwo kredytowe eksperta z ponad 20-to letnim doświadczeniem we współpracy z wszystkimi dostępnymi bankami na rynku.


W sprzedaży posiadamy również  inne  2, 3 i 4 pokojowe mieszkania w tej inwestycji.


W celu uzyskania szczegółowych informacji oraz umówienia spotkania w miejscu realizacji projektu zapraszam do kontaktu telefonicznego


Mariusz tel. 505120170

Lokalizacja nieruchomości

Kalkulatory

Kalkulator kredytowy

Wysokość raty

PLN
%

Kalkulator kosztów

Taksa notarialna
(opłata notarialna)

Wniosek o wpis do WKW

VAT od prowizji
agencji nieruchomości

Vat od taksy notarialnej
(opłaty notarialnej)

Prowizja agencji nieruchomości

Wypisy aktu notarialnego

Razem

Uwaga: mogą wystąpić dodatkowe opłaty za założenie księgi wieczystej oraz ustanowienie hipoteki.

PLN
PLN
PLN
PLN
PLN
%
PLN

Podobne oferty

Mieszkanie na sprzedaż

Warszawa, Białołęka

2 pokoje 35 m2 15 857,14 zł/m2

Mieszkanie na sprzedaż

Warszawa, Białołęka

2 pokoje 36 m2 14 800,00 zł/m2

Mieszkanie na sprzedaż

Warszawa, Białołęka

2 pokoje 36 m2 14 777,78 zł/m2

Mieszkanie na sprzedaż

Warszawa, Białołęka

2 pokoje 36 m2 14 444,44 zł/m2

wspołwłaściciel/manager

Proszę wprowadzić poprawne imię i nazwisko
Proszę wprowadzić poprawny numer telefonu
Proszę wprowadzić poprawny adres e-mail
Proszę zaznaczyć wymagane zgody
Rozwiąż równanie:
26 8
Niepoprawny wynik