Mieszkanie na sprzedaż

Gdańsk, Letnica

4 pokoje
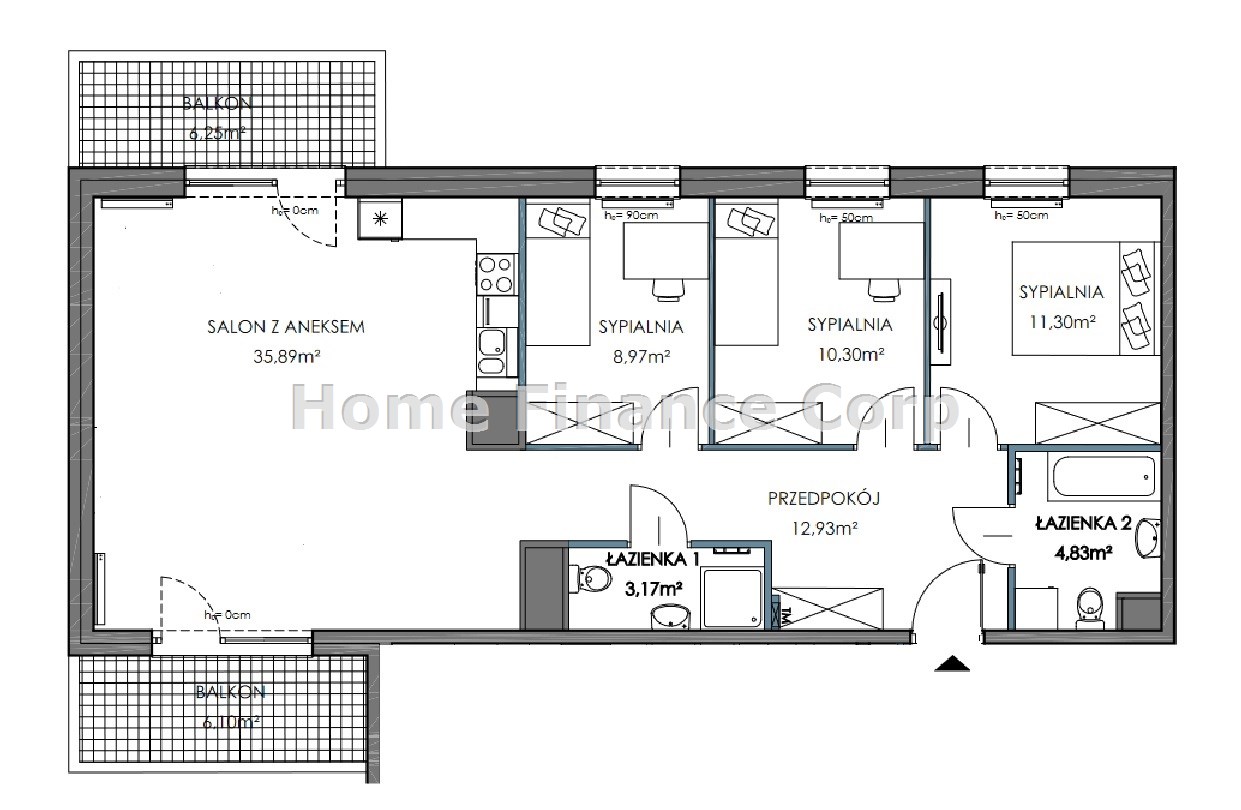
87.14 m²
13 300,00 zł/m2
HFC-MS-2216
Oblicz ratę kredytu

1 158 962 zł

Nowa oferta

Szczegóły oferty

Symbol oferty HFC-MS-2216
Powierzchnia 87,14 m²
Powierzchnia użytkowa [m2] 87,14 m²
Liczba pokoi 4
Liczba sypialni 3
Rodzaj budynku apartamentowiec
Standard
Stan lokalu deweloperski
Okna PCV
Balkon jest
Winda tak
Pierwsza linia brzegowa tak
J&A

J&A

wspołwłaściciel/manager

Napisz wiadomość 153 Ofert

Opis nieruchomości

SPRZEDAŻ REALIZOWANA BEZPOŚREDNIO OD DEWELOPERA - bez prowizji i podatku PCC!
CENA DO NEGOCJACJI !!!


Przepiękna nowoczesna inwestycja usytuowana zaledwie 10 min. piechotą od plaży w Brzeźnie w otoczeniu  terenów zielonych i pełnej infrastruktury społeczno-kulturalnej.

Apartament występuje w sprzedaży na piętrach  0, 1, 2, 3, 5 i 8
Oddanie do użytkowania - IV kwartał 2024 r.


Z wyższych pięter i zielonych ogólnodostępnych dla mieszkańców tarasów na dachu rozciąga się piękny widok na Zatokę Gdańską (w dalszej perspektywie na Półwysep Helski), Stare Miasto, Port morski Gdańsk, Półwysep Westerplatte oraz Stadion Energa i halę  AmberExpo, a w niedalekiej przyszłości spektakularny kompleks Oceanarium NAUTILIUS/Aquapark EGZOTYCZNA LAGUNA oraz Centrum Medical&Spa, wszystko to 5 do 7 min na piechotę.

Najbliższa okolica ma świetnie rozbudowaną infrastrukturę drogową skąd szybko można dojechać do Centrum, pobliskich dzielnic na wybrzeżu oraz wyjechać z miasta pobliską Aleją Płażyńskiego, tunelem pod Martwą Wisłą, a dalej DK 89 do S7 i S6.
Niedaleko znajdują się przystanki tramwajowe (nr 3, 7, 8, 10) i autobusowe (nr 158, 258, 283, 658, N12) zlokalizowane u zbiegu Alei Macieja Płażyńskiego i Marynarki Polskiej.

Bliskość przedszkoli, szkół, plaży, parków i innych terenów zielonych i dostęp do komunikacji miejskiej jawi się jako idealna przestrzeń do życia.
W okolicy powstają liczne ścieżki rekreacyjne, parki i miejsca do gier oraz strefy fitness. Dodatkowo sąsiedztwo Stadionu Energa Gdańsk, hali AmberExpo, Movement Arena (centrum sportów ekstremalnych), Playgroung Arena dla najmłodszych, tor gokartowy PITSTOP  kluby sportowe/fitness zapewnią doskonały dostęp do wydarzeń sportowo-rozrywkowych. Każdy znajdzie tu wiele pomysłów na ciekawe spędzanie czasu.
Już wkrótce powstanie tu też  spektakularny kompleks Oceanarium NAUTILIUS/Aquapark EGZOTYCZNA LAGUNA oraz Centrum Medical&Spa

Wysoki standard inwestycji zagwarantuje wykorzystanie najnowszych technologii oraz użycie szlachetnych materiałów wykończeniowych wewnątrz oraz na zewnątrz budynków.
Wyróżnikiem inwestycji będą zielone tarasy na dachach budynków ze strefami wypoczynku dla dzieci i dorosłych oraz strefy urządzeń do ćwiczeń fitness.

Mieszkanie sprzedawane jest w standardzie deweloperskim; w ofercie załączone są wizualizacje i zdjęcia wcześniejszych realizacji wykończenia apartamentów Naszych klientów.

Dla zainteresowanych doradztwo kredytowe eksperta z ponad 20-to letnim doświadczeniem we współpracy z wszystkimi dostępnymi bankami na rynku.




Po więcej informacji zapraszam do kontaktu telefonicznego i/lub spotkania w biurze sprzedaży tuż przy budowie inwestycji,

Arkadiusz,
tel.  532278733

Lokalizacja nieruchomości

Kalkulatory

Kalkulator kredytowy

Wysokość raty

PLN
%

Kalkulator kosztów

Taksa notarialna
(opłata notarialna)

Wniosek o wpis do WKW

VAT od prowizji
agencji nieruchomości

Vat od taksy notarialnej
(opłaty notarialnej)

Prowizja agencji nieruchomości

Wypisy aktu notarialnego

Razem

Uwaga: mogą wystąpić dodatkowe opłaty za założenie księgi wieczystej oraz ustanowienie hipoteki.

PLN
PLN
PLN
PLN
PLN
%
PLN

Podobne oferty

Mieszkanie na sprzedaż

Gdańsk, Letnica

3 Pokoje 74 m2 18 000,00 zł/m2

Mieszkanie na sprzedaż

Gdańsk, Letnica

3 Pokoje 74 m2 18 000,00 zł/m2

Mieszkanie na sprzedaż

Gdańsk, Letnica

3 Pokoje 74 m2 18 000,00 zł/m2

Mieszkanie na sprzedaż

Gdańsk, Letnica

4 Pokoje 87 m2 13 300,00 zł/m2

wspołwłaściciel/manager

Proszę wprowadzić poprawne imię i nazwisko
Proszę wprowadzić poprawny numer telefonu
Proszę wprowadzić poprawny adres e-mail
Proszę zaznaczyć wymagane zgody
Rozwiąż równanie:
18 8
Niepoprawny wynik